Evo pokušaću. Ne kosi se sa pravilima, gramatika nije nešto na šta se insistira na tehničkom forumu, svi grešimo ponešto, takođe i ja, ali nije loše pisati pravilno. Da bi se lakše pratila misao.
Ne ide se na novi red, ako nije završena rečenica ili nije ispunjen prethodni red.
Što se tiče oznake modula,ispričavam se,sada sam ga upisao, no,oznaku sa bočne stranice vrata sam slikao da se vidi kako je nevidljivo(to sam napomenuo).
Što se tiče načina pisanja posta,ne razumijem u čemu sam pogriješio.I na kraju,prikazana šema je ista koju sam našao na ovom forumu-člana petcompa,
od 22.sept. 2012.(modul 41019215),a moj modul ima oznaku 41029101,tako da sam opet na početku.Osim toga,slike sam slikao mobitelom i prenesao u
računalo,no,kad kliknem na sliku,ne znam zašto se ne može povećati.
Evo ovako bi trebalo.
Što se tiče oznake modula, ispričavam se, sada sam ga upisao, no, oznaku sa bočne stranice vrata sam slikao da se vidi kako je nevidljivo(to sam napomenuo).
Što se tiče načina pisanja posta, ne razumijem u čemu sam pogriješio. I na kraju,prikazana šema je ista koju sam našao na ovom forumu-člana petcompa, od 22.sept. 2012. (modul 41019215),a moj modul ima oznaku 41029101, tako da sam opet na početku. Osim toga, slike sam slikao mobitelom i prenesao u računalo, no, kad kliknem na sliku, ne znam zašto se ne može povećati.
Mod. CD132 AAA
Art. No. (nije vidljivo-priložena slika)
Modul: 41029101
Na poziv mušterije,koja je rekla da je suđerica radila i dimila,ustanovio sam pregaranje dijela elektronike,te odnio na popravak.Zamjenjeni su elektroliti.
blok kondenzatori i relej grijača.Nakon montaže i ukopčavanja,mašina nije proradila(nije se upalila ni kontrolna

napajanja).Konzultirao sam
elektroničara,koji je rekao da je elektronika ispravna,što znači da negdje u ostatku instalacije gubi fazu(nulu).Prekidač ukopčavanja ispravan,brava
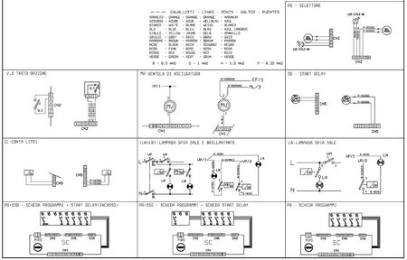
vrata ispravna,ožičenje provjereno.Pokušavao sam pratiti po šemi,koja se nalazi na ovom forumu,ali ne odgovara u potpunosti,npr. elektronika na šemi
ima jedan konektor(ne računajući konektor grijača kraj releja),dok ova mašina ima tri konektora.Na šemi ima dva hidrostata(PN-radni i PS-sigurnosni),a
na mašini samo jedan.Pošto ne mogu otkriti kvar,tražim pomoć.Da li je netko imao sličan problem?Da li netko ima odgovarajuću šemu?Da li bi mogao biti
neispravan proceso,unatoč tvrdnji elektroničara kako je modul ispravan?Ne znam više što drugo poduzeti,nego čekati nečiji savjet.Pozzz
I ovo:
Mod. CD132 AAA
Art. No. (nije vidljivo-priložena slika)
Modul: 41029101
Na poziv mušterije, koja je rekla da je suđerica radila i dimila, ustanovio sam pregaranje dijela elektronike, te odnio na popravak. Zamjenjeni su elektroliti, blok kondenzatori i relej grijača. Nakon montaže i ukopčavanja, mašina nije proradila(nije se upalila ni kontrolna

napajanja). Konzultirao sam elektroničara, koji je rekao da je elektronika ispravna,što znači da negdje u ostatku instalacije gubi fazu(nulu). Prekidač ukopčavanja ispravan, brava vrata ispravna,ožičenje provjereno. Pokušavao sam pratiti po šemi,koja se nalazi na ovom forumu, ali ne odgovara u potpunosti,npr. elektronika na šemi ima jedan konektor(ne računajući konektor grijača kraj releja),dok ova mašina ima tri konektora. Na šemi ima dva hidrostata(PN-radni i PS-sigurnosni),a na mašini samo jedan.Pošto ne mogu otkriti kvar,tražim pomoć. Da li je netko imao sličan problem? Da li netko ima odgovarajuću šemu? Da li bi mogao biti neispravan proceso, unatoč tvrdnji elektroničara kako je modul ispravan? Ne znam više što drugo poduzeti, nego čekati nečiji savjet. Pozzz
Naravno, sve je ovo dobronamerno. A i sam si ispravio u svom zadnjem postu.
