SHARP CV3710S chassis 8PSR ne radi
Pravila foruma
Naslov teme treba da bude u formatu: PROIZVOĐAČ, MODEL, KRATAK OPIS KVARA
Nakon rešenog kvara zatvoriti temu >> >UPUTSTVO< u suprotnom ništa ne činiti.
HOME -- SERVISERI -- DALJINSKI -- RAZNA UPUTSTVA
Naslov teme treba da bude u formatu: PROIZVOĐAČ, MODEL, KRATAK OPIS KVARA
Nakon rešenog kvara zatvoriti temu >> >UPUTSTVO< u suprotnom ništa ne činiti.
HOME -- SERVISERI -- DALJINSKI -- RAZNA UPUTSTVA
-
dane
- gx

- Postovi: 371
- Pridružen: 02 Apr 2007, 16:38
- Location: Hrvatska
- Contact person: Dane
- Specialty: tv-multimedia
- Lokacija: cro
SHARP CV3710S chassis 8PSR ne radi
FIRMA:sharp
MODEL: cv3710s
CHASSIS(oznaka šasije):8p-sr
PCB(oznake na štampanoj ploči):k5900we i druga v48d m
MCU(procesor):ix1147ce
EEPROM:
VERTIKALA:xo238ce
AUDIO:x0250c
VIDEO:ekran 34
SMPS (mreža):strd5541
FBT (vn trafo):f0027bem
TUNER:vtsais
KVAR ne radi
OPIS Kvara evo kolege dok mi je tema bila zaključana dosta se stvari događalo
otkrio sam koji je tv u pitanju i koja je šasija
tv sam bio napravio i radio mi je pola sata i ponovo crko
mijenjao sam strd5541 za koji sam dobio zamjenu strd5441 diode u gretzu i elektrolite u primaru osim onog bipolarnog i otpornik 6,8oma 5w da li sam još nešto trebao zamjeniti i da li neko zna šta staviti umjesto tih sharpovi dioda pozdrav
i umjesto diode sv0389 probao staviti 3 diode u seriju 1n4007 pošto sa jednom nije htio proradit
MODEL: cv3710s
CHASSIS(oznaka šasije):8p-sr
PCB(oznake na štampanoj ploči):k5900we i druga v48d m
MCU(procesor):ix1147ce
EEPROM:
VERTIKALA:xo238ce
AUDIO:x0250c
VIDEO:ekran 34
SMPS (mreža):strd5541
FBT (vn trafo):f0027bem
TUNER:vtsais
KVAR ne radi
OPIS Kvara evo kolege dok mi je tema bila zaključana dosta se stvari događalo
otkrio sam koji je tv u pitanju i koja je šasija
tv sam bio napravio i radio mi je pola sata i ponovo crko
mijenjao sam strd5541 za koji sam dobio zamjenu strd5441 diode u gretzu i elektrolite u primaru osim onog bipolarnog i otpornik 6,8oma 5w da li sam još nešto trebao zamjeniti i da li neko zna šta staviti umjesto tih sharpovi dioda pozdrav
i umjesto diode sv0389 probao staviti 3 diode u seriju 1n4007 pošto sa jednom nije htio proradit
Zadnja izmena: Stolle, dana 16 Okt 2009, 19:33, ukupno menjano 2 puta.
Razlog: NASLOV TEME USKLAĐEN SA PRAVILNIKOM FORUMA
Razlog: NASLOV TEME USKLAĐEN SA PRAVILNIKOM FORUMA
Dane
- milan
- Preminuo
- Postovi: 4426
- Pridružen: 19 Avg 2006, 22:38
- Location: Novi Sad
- Specialty: tv-multimedia
Re: sharp tv ne radi
Nemoze tako, mora po pravilima foruma.
- milan
- Preminuo
- Postovi: 4426
- Pridružen: 19 Avg 2006, 22:38
- Location: Novi Sad
- Specialty: tv-multimedia
Re: sharp tv ne radi
Otvorio sam temu, ali moras popuniti ono po pravilima foruma, jer cu je ponovo zakljucati.
Ako neznas chassis ili model, popisi barem nazive i pozicije IC kola da bi mogli sa semom da pomognemo.
Ako neznas chassis ili model, popisi barem nazive i pozicije IC kola da bi mogli sa semom da pomognemo.
-
FAZI
- _

- Postovi: 52
- Pridružen: 03 Jan 2009, 16:14
- Location: M.Brod-Makedonija
- Contact person: Goran
- Specialty: tv-multimedia
Re: sharp tv ne radi
ocigledno radi se o sharp CV-2131sc ili cv-2131bk a na semi 1x1148 je strd5441. evo jedan link http://monitor.espec.ws/section1/topic49674.html, a i sema.
- Prilog
-
CV-2131SC.rar- (293.11 KiB) Preuzeto 238 puta.
- milan
- Preminuo
- Postovi: 4426
- Pridružen: 19 Avg 2006, 22:38
- Location: Novi Sad
- Specialty: tv-multimedia
Re: sharp tv ne radi
sema.
dane hvala na razumevanju.
dane hvala na razumevanju.
- Prilog
-
SHARP 8PSR schema.rar- (528.97 KiB) Preuzeto 269 puta.
- Stolle
- Preminuo
- Postovi: 19098
- Pridružen: 12 Avg 2006, 23:35
- Location: Srbija
- Specialty: tv-multimedia
- Lokacija: Dimitrovgrad
Re: sharp tv ne radi
Možda je trebalo staviti brŽe diode, 1N4007 je spora.
Kako ti se meri ta neispravna?
Kako ti se meri ta neispravna?
"29 poslednjih dana u mesecu je najteže"
- milan
- Preminuo
- Postovi: 4426
- Pridružen: 19 Avg 2006, 22:38
- Location: Novi Sad
- Specialty: tv-multimedia
Re: SHARP CV3710S chassis 8PSR ne radi
Na tim mrezama ja sam menjao samo elektrolite u primaru i sekundaru, i zener diode koje su u zastiti.
I jedan FBT.
STRD mi nikada nije crko.
Koja je pozicija tih dioda na semi?
I jedan FBT.
STRD mi nikada nije crko.
Koja je pozicija tih dioda na semi?
-
dane
- gx

- Postovi: 371
- Pridružen: 02 Apr 2007, 16:38
- Location: Hrvatska
- Contact person: Dane
- Specialty: tv-multimedia
- Lokacija: cro
Re: SHARP CV3710S chassis 8PSR ne radi
je radio mi pola sata i krepo opet strd5441 i visokovatni otpor 6,8oma 5 w nije riješeno
Dane
- Stolle
- Preminuo
- Postovi: 19098
- Pridružen: 12 Avg 2006, 23:35
- Location: Srbija
- Specialty: tv-multimedia
- Lokacija: Dimitrovgrad
Re: SHARP CV3710S chassis 8PSR ne radi
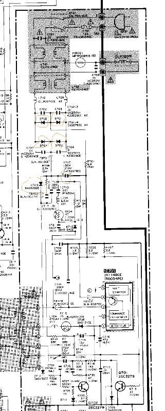
Milane, to je silicon varistor SV03 (tri diode na red za SV03) na poziciji D705.
- Prilog
-
- 1.jpg (24.71 KiB) Pregledano 2449 puta.
"29 poslednjih dana u mesecu je najteže"
- milan
- Preminuo
- Postovi: 4426
- Pridružen: 19 Avg 2006, 22:38
- Location: Novi Sad
- Specialty: tv-multimedia
Re: SHARP CV3710S chassis 8PSR ne radi
Bipolarni kondenzator obavezno moras promeniti.
- milan
- Preminuo
- Postovi: 4426
- Pridružen: 19 Avg 2006, 22:38
- Location: Novi Sad
- Specialty: tv-multimedia
Re: SHARP CV3710S chassis 8PSR ne radi
Ako je d705 kako je stolle napisao, ona ima funkciju da bi radio tranzistor q701, a to znaci veci napon od 0.6v + 0,6v
znaci 3 do 4 diode na red zavisi od unutrasnjeg otpora diode, i obavezno neke od brzih.
znaci 3 do 4 diode na red zavisi od unutrasnjeg otpora diode, i obavezno neke od brzih.
- milan
- Preminuo
- Postovi: 4426
- Pridružen: 19 Avg 2006, 22:38
- Location: Novi Sad
- Specialty: tv-multimedia
Re: SHARP CV3710S chassis 8PSR ne radi
dx0027ce menja je dioda fr207
-
dane
- gx

- Postovi: 371
- Pridružen: 02 Apr 2007, 16:38
- Location: Hrvatska
- Contact person: Dane
- Specialty: tv-multimedia
- Lokacija: cro
Re: SHARP CV3710S chassis 8PSR ne radi
da li neko zna dali se može još neko kolo stavit umjesto strd5541istr5441 pošto više nemam u rezervi niti jedno kolo i da li neko zna šta mijenja ove diode:
dx0131ce
dx0164ce
dx0226ce
dx0130ce
dx0131ce
dx0164ce
dx0226ce
dx0130ce
Dane
- kisko
- Preminuo
- Postovi: 2054
- Pridružen: 12 Jun 2007, 01:51
- Location: Kovilj-na kraj sveta
- Specialty: tv-multimedia
- Lokacija: Kovilj-Novi sad
Re: SHARP CV3710S chassis 8PSR ne radi
Kolega vidim da se zelis ukljucit u red i rad foruma i da shodno tome se moras pridrzavati nekih pravila,da bi ti neko odgovorio na tvoje zadnje pitanje red je da ti postavis sliku tog dela mreze,znaci dal ces sa paint pa copy/paste ili sa nekim drugim ka npr snagit uslikati taj deo mreze i reci to i to me muci ,sta mogu postaviti umesto njih, ...a ovako da ocekujes da kolege "cesljaju net" trazeci odgovor na tvoje pitanje,tesko da cesa dobiti odgovor tj postavi seti u situaciju da moras trazit po netu za neciju chassis podatak i da mu posle prezentujes to....sati posla a za drugog...hmmmmmmmmmmmm,razmisli o tomr.........sve je lakse kad se upise model,chassis,pa onda postavis deo sheme koji te zeza uz pomoc snagit-a ili sl. programadane je napisao:da li neko zna dali se može još neko kolo stavit umjesto strd5541istr5441 pošto više nemam u rezervi niti jedno kolo i da li neko zna šta mijenja ove diode:
dx0131ce
dx0164ce
dx0226ce
dx0130ce
uvek ima nesto interesantno
-
zmajtv
- _

- Postovi: 70
- Pridružen: 10 Jan 2007, 21:00
- Location: Srbija
- Specialty: tv
- Lokacija: Jagodina
Re: SHARP CV3710S chassis 8PSR ne radi
Kod tog TV-a mreza nikad nije stala
Imas elektrolit pored BU-a u HIS-u,tik uz hladnjak BU-a,takoreci zalepljen za hladnjak i cini mi se da je 470/50 a sluzi za napajanje vertikale. E njega promeni i TV pali ko mina
Imao sam vise puta problem sa tim TV-om a zadnji pre 10-tak dana.
To sto ti je proradio pa stao je bas njegov simptom. Meni se desavalo i da ga dam musteriji,a on u radu stane,sto nikako ne ukazuje da je elektrolit-a jeste.
Imas elektrolit pored BU-a u HIS-u,tik uz hladnjak BU-a,takoreci zalepljen za hladnjak i cini mi se da je 470/50 a sluzi za napajanje vertikale. E njega promeni i TV pali ko mina
Imao sam vise puta problem sa tim TV-om a zadnji pre 10-tak dana.
To sto ti je proradio pa stao je bas njegov simptom. Meni se desavalo i da ga dam musteriji,a on u radu stane,sto nikako ne ukazuje da je elektrolit-a jeste.
-
dane
- gx

- Postovi: 371
- Pridružen: 02 Apr 2007, 16:38
- Location: Hrvatska
- Contact person: Dane
- Specialty: tv-multimedia
- Lokacija: cro
Re: SHARP CV3710S chassis 8PSR ne radi
kolege naručio sam dijelove i sad čekam ako još neko ima kakvu ideju prije nego li mi stignu dijelovi slobodno napišite
Dane
-
dane
- gx

- Postovi: 371
- Pridružen: 02 Apr 2007, 16:38
- Location: Hrvatska
- Contact person: Dane
- Specialty: tv-multimedia
- Lokacija: cro
Re: SHARP CV3710S chassis 8PSR ne radi
evo kolege da se ponovo javim zanima me dioda d 712 u tv je u1z89 a po shemi dx0130ce pa ako znate da li može ići i koja dioda umjesto nje zamjenio sam bipolarni kondenzator i ona 2 tranzistora 2sc3279 i sve elektrolite u primaru i sekundaru ajd pomažite da mi ne krepa opet strd ima li još šta
Dane
-
- Slične teme
- Odgovori
- Pregledano
- Zadnji post
-
-
TV SHARP 37GQ20S Chassis SQUAD - Radi samo mreža (ODUSTAO)
napisao Srečko » 02 Apr 2008, 11:33 » u Servisiranje CRT Televizora - 13 Odgovori
- 1934 Pregledano
-
Zadnji post napisao Srečko
09 Apr 2008, 20:03
-
-
-
Sharp 70AS03S NE RADI (RIJEŠENO)
napisao Branko_Bird » 15 Nov 2011, 13:35 » u Servisiranje CRT Televizora - 6 Odgovori
- 1133 Pregledano
-
Zadnji post napisao Branko_Bird
19 Nov 2011, 17:29
-
-
-
TV SHARP DV7011S Chassis D3000 - Slika (RESENO)
napisao milans01 » 09 svi 2008, 10:03 » u Servisiranje CRT Televizora - 23 Odgovori
- 3970 Pregledano
-
Zadnji post napisao agatel
14 svi 2008, 15:21
-
-
-
TV SHARP SV2877S(BK) Chassis NC7 - Potrebna šema (RIJEŠENO)
napisao skyline-GTR » 17 Jun 2008, 15:43 » u Servisiranje CRT Televizora - 2 Odgovori
- 763 Pregledano
-
Zadnji post napisao skyline-GTR
17 Jun 2008, 23:38
-
-
-
TV SHARP 70CS05S Chassis CS - Šareni raster
napisao Boban » 09 Sep 2008, 00:07 » u Servisiranje CRT Televizora - 13 Odgovori
- 2139 Pregledano
-
Zadnji post napisao nessha
17 Sep 2008, 00:52
-
-
-
TV SHARP DV21081S Chassis D3000 - Problem sa slikom
napisao stojkePN » 14 Nov 2008, 04:17 » u Servisiranje CRT Televizora - 27 Odgovori
- 3170 Pregledano
-
Zadnji post napisao stojkePN
30 svi 2009, 01:50
-
-
-
TV SHARP 72DS18S Chassis CA100 - Potrebna shema (RESENO)
napisao staka » 11 Dec 2008, 21:28 » u Servisiranje CRT Televizora - 4 Odgovori
- 791 Pregledano
-
Zadnji post napisao staka
12 Dec 2008, 00:03
-
-
-
TV SHARP 70GS61 Chassis GA10 - Slika podrhtava (REŠENO)
napisao betatrondoo » 25 Dec 2008, 02:31 » u Servisiranje CRT Televizora - 4 Odgovori
- 973 Pregledano
-
Zadnji post napisao alexa_pg
29 Dec 2008, 20:01
-
