Kučni frizider ZANUSSI ZD22/6R ZLRF280 kombinovani
Urednici: goranfri,nike,sim,Honorarac
Pravila foruma
BT-expert info - BTexpert forumi
U naslov teme prvo pisati ime proizvođača, zatim oznake modela bez crtica i razmaka i kratak opis kvara. U post obavezno upisati ID ili EAN oznake sa poleđine aparata u suprotnom tema će biti obrisana.
Praktikujemo da na kraju opišemo kako smo rešili problem. Zatim zatvorimo temu >UPUTSTVO<
PRILIKOM POSTAVLJANJA PITANJA U VEZI ELEKTRONSKOG MODULA OBAVEZNO POPIŠITE SVE OZNAKE sa ploče i sa nalepnica, dobro bi došla i po koja fotografija.
BT-expert info - BTexpert forumi
U naslov teme prvo pisati ime proizvođača, zatim oznake modela bez crtica i razmaka i kratak opis kvara. U post obavezno upisati ID ili EAN oznake sa poleđine aparata u suprotnom tema će biti obrisana.
Praktikujemo da na kraju opišemo kako smo rešili problem. Zatim zatvorimo temu >UPUTSTVO<
PRILIKOM POSTAVLJANJA PITANJA U VEZI ELEKTRONSKOG MODULA OBAVEZNO POPIŠITE SVE OZNAKE sa ploče i sa nalepnica, dobro bi došla i po koja fotografija.
-
nizak pritisak
- _

- Postovi: 27
- Pridružen: 22 Mar 2011, 19:09
- Location: Hrvatska - Dubrovnik
- Contact person: Ivo
- Phone number: 0038520417934
Kučni frizider ZANUSSI ZD22/6R ZLRF280 kombinovani
Pozdrav !
Isao sam susjedu stariji ljudi u penziji popraviti ovaj frizider
ZANUSSI ZD22/6R ZLRF280
kompresor je ZEMGLY80AA
uglavnom od nedavno gore gdje ledenica radi smrzava ali doli gdje su namirnice nista ne hladi ,jedan je kompresor mjerio sam mu na tlacnoj strani pritisak i pumpa ga 11 bara ,kada sam se prikljucio na servisnu cijev manometri nista skinem crijevo sa servisnih kljesta nista ne ide ,otkinem kapilaru kljestima za kapilaru pri filteru freon krene isparava li isparava . Otkinem filter provam ga onako na usta nista ne mozes puhnuti ,prije varenja novog filtera prikljucim se hansa spojnicom na cijev od filtera i spojim se na vakum pumpu prstom zacepim servisnu cijev i kapilaru i tako vakumiram poslje toga stavim novi filter i sada kompletan sistem izvakumiram jedno 20 minuta ,jos malo pricekam da se filter ohladi i napunim plinom R134a postepeno na normu od 155 g. i on na zalost ide u vakum provao sam malo vise plina dodati jedno 25 g da ne bili probio ali nista , e sada ono sto me zanima sto se uopce dogodilo sa tim frižiderom da gore freon dolazi i hladi a nize u istom sistemu ama bas nista i sto mu je sada poslje popravka (osim ako ja nisam nesto krivo ucinio ) zasto ide u vakum ?
Volio bi poraviti to ovim penzionerima jer ionako nemaju para (ovo sto sam radio nisam nista htio naplatiti ali ova zena mi turi 30,00 kn u djep pa me sada jos vise smeta sto nisam nista napravio ) .
Ako netko bude trebao nekakvih dijelova za frizider od Vas majstora ,pisite javite pa ako imam drage volje cu dati ,jer mislim da je to fer obzirom da Vi svoje znanje i iskustvo davate nama mladjim i manje iskusnim majstorima :
Hvala !
Isao sam susjedu stariji ljudi u penziji popraviti ovaj frizider
ZANUSSI ZD22/6R ZLRF280
kompresor je ZEMGLY80AA
uglavnom od nedavno gore gdje ledenica radi smrzava ali doli gdje su namirnice nista ne hladi ,jedan je kompresor mjerio sam mu na tlacnoj strani pritisak i pumpa ga 11 bara ,kada sam se prikljucio na servisnu cijev manometri nista skinem crijevo sa servisnih kljesta nista ne ide ,otkinem kapilaru kljestima za kapilaru pri filteru freon krene isparava li isparava . Otkinem filter provam ga onako na usta nista ne mozes puhnuti ,prije varenja novog filtera prikljucim se hansa spojnicom na cijev od filtera i spojim se na vakum pumpu prstom zacepim servisnu cijev i kapilaru i tako vakumiram poslje toga stavim novi filter i sada kompletan sistem izvakumiram jedno 20 minuta ,jos malo pricekam da se filter ohladi i napunim plinom R134a postepeno na normu od 155 g. i on na zalost ide u vakum provao sam malo vise plina dodati jedno 25 g da ne bili probio ali nista , e sada ono sto me zanima sto se uopce dogodilo sa tim frižiderom da gore freon dolazi i hladi a nize u istom sistemu ama bas nista i sto mu je sada poslje popravka (osim ako ja nisam nesto krivo ucinio ) zasto ide u vakum ?
Volio bi poraviti to ovim penzionerima jer ionako nemaju para (ovo sto sam radio nisam nista htio naplatiti ali ova zena mi turi 30,00 kn u djep pa me sada jos vise smeta sto nisam nista napravio ) .
Ako netko bude trebao nekakvih dijelova za frizider od Vas majstora ,pisite javite pa ako imam drage volje cu dati ,jer mislim da je to fer obzirom da Vi svoje znanje i iskustvo davate nama mladjim i manje iskusnim majstorima :
Hvala !
Zadnja izmena: nike, dana 27 Jun 2011, 23:45, ukupno menjano 4 puta.
Razlog: Oznake se pišu bez razmaka. ZEMGLY80AA, ne ZEM GLY 80 AA. ZLRF280, ne ZLRF 280.
Razlog: Oznake se pišu bez razmaka. ZEMGLY80AA, ne ZEM GLY 80 AA. ZLRF280, ne ZLRF 280.
- nike
- gxu

- Postovi: 2898
- Pridružen: 21 Mar 2010, 11:35
- Location: Split HR
- Warranty service: Atosa Arisco Ozti Fimar Roller-Grill Systemair Fiocchetti Prismafood Cappone Hendi Omniwash Icetech ItalI-Ice
- Contact person: NIKE
- Specialty: whitegoods
- Lokacija: Split, HR
Re: Kučni frizider ZANUSSI kombinovani
Provjeri jeli frižider ima magnetni ventil. Možda je on neispravan.
Opiši isparivač u ledenici i u frižiderskom dijelu.
Kako se kontrolira temperatura u oba dijela.
Rad u blagom vakuumu i do 0,7 bar apsolutno (-0,3 bar na relativnom manometru) je normalan ovisno o temperaturi u frižideru i vani. To je isparavanje od -33°C što je sasvim moguće ako je u ledenici -18 i niže.
Ne gledaj tlak već gledaj temperature isparavanja i kondezacije za R134A.
Opiši isparivač u ledenici i u frižiderskom dijelu.
Kako se kontrolira temperatura u oba dijela.
Rad u blagom vakuumu i do 0,7 bar apsolutno (-0,3 bar na relativnom manometru) je normalan ovisno o temperaturi u frižideru i vani. To je isparavanje od -33°C što je sasvim moguće ako je u ledenici -18 i niže.
Ne gledaj tlak već gledaj temperature isparavanja i kondezacije za R134A.
"Blago budalama, njima je lako jer ne misle tako!" PV
-
nizak pritisak
- _

- Postovi: 27
- Pridružen: 22 Mar 2011, 19:09
- Location: Hrvatska - Dubrovnik
- Contact person: Ivo
- Phone number: 0038520417934
Re: Kučni frizider ZANUSSI kombinovani
Pozadi gje je kompresor i filter plina nije sigurno ,jedino ako nije gdje u plastici oko isparivaca ali to je u kucistu i ne moze mu se prici ,ili ako nije u prostoru gdje termostat u sto sumnjam ali sve jedno cijeli frizider cu jos jednom pogledati da bi sto posto utvrdio ima li ga igdje ,sv jedno HVALA jer nema mi gore kada se oko necaga potrudim a rezultata nigdje ,reci cu im da ga izgase da se odmrzne jer je zamrznut cijeli u ledenici i onda jovo na novo ,jos jednom Hvala !
Re: Kučni frizider ZANUSSI kombinovani
ocigledno je da postoji zapusenje u instalaciji, mozda je povuklo ulje u friziderski isparivac ali opet mi nije jasno kako hladi gore
jel cujes protok gasa??
ja bih probao sa ponovnom zamenom susaca, otopljenim komplet friziderom , i duzim vakuumiranjem. ako i to ne upali, produvavanje kroz kapilaru
ja bih probao sa ponovnom zamenom susaca, otopljenim komplet friziderom , i duzim vakuumiranjem. ako i to ne upali, produvavanje kroz kapilaru
-
nizak pritisak
- _

- Postovi: 27
- Pridružen: 22 Mar 2011, 19:09
- Location: Hrvatska - Dubrovnik
- Contact person: Ivo
- Phone number: 0038520417934
Re: Kučni frizider ZANUSSI kombinovani
Isao sam ponovo predvece pa sam malo bolje sve pogledao ,definitivno nigdje vidno nema magnetnog ventila ,isparivac u ledenici je plocasti zakrivljeni od dna na obje strane ledenice kao slovo ( U ) recimo tako ,a isparivac za namirnice je u plastici ili ga cini isti isparivac iz ledenice nisam siguran,jer se ne vidi okom kao u ledenici ,termostat je jedan sa tri prikljucka jedan od prikljucaka je svjetlo u hladnjaku a kapilara je u prostoru za namirnice u vrhu i na sredini , star je 11 godina ,a kompresor je ZEM / GLY80AA .
-
nizak pritisak
- _

- Postovi: 27
- Pridružen: 22 Mar 2011, 19:09
- Location: Hrvatska - Dubrovnik
- Contact person: Ivo
- Phone number: 0038520417934
Re: Kučni frizider ZANUSSI kombinovani
Jeli ima onda netko shemu rashlada od ovog Zanussi kombinovanog hladnjaka ,da vidim i da znam za ubuduce jeli postoji negdje u kucistu frizidera magnetni ventil ,inace dosta puta sam cuo od ljudi da im se stvori problem da frizider hladi gore u ledenici ,a gdje su namirnice slabo ili nikako . Shvacam da je svaki frizider (proizvodjac) nesto drugacije tehnicke izvedbe ali ovaj problem cesto cujem da je na starijim Koncar friziderima .
- nike
- gxu

- Postovi: 2898
- Pridružen: 21 Mar 2010, 11:35
- Location: Split HR
- Warranty service: Atosa Arisco Ozti Fimar Roller-Grill Systemair Fiocchetti Prismafood Cappone Hendi Omniwash Icetech ItalI-Ice
- Contact person: NIKE
- Specialty: whitegoods
- Lokacija: Split, HR
Re: Kučni frizider ZANUSSI kombinovani
Mi još čekamo oznaku modela!
Koliko vidim bio si opet kod njega i opet nisi napisao koja je oznaka.
Mogao si nabaciti koju sliku samog frižidera i detaljno zadnje strane tako da vidimo razvod cjevovoda po frižideru. onda će sve biti jasno.
Koliko vidim bio si opet kod njega i opet nisi napisao koja je oznaka.
Mogao si nabaciti koju sliku samog frižidera i detaljno zadnje strane tako da vidimo razvod cjevovoda po frižideru. onda će sve biti jasno.
"Blago budalama, njima je lako jer ne misle tako!" PV
-
nizak pritisak
- _

- Postovi: 27
- Pridružen: 22 Mar 2011, 19:09
- Location: Hrvatska - Dubrovnik
- Contact person: Ivo
- Phone number: 0038520417934
Re: Kučni frizider ZANUSSI kombinovani
Zanussi ZD 22/6 R - ZLRF 280 , nisam vise isao od zadnjeg puta pa nema slike nazalost ,ove podatke sam tada uzeo ,a ni sam ne znam zasto ih nisam napisao .Sto se tice cjevovoda on je standrdan skroz cijev od isparivaca na kompresoru ,kapilara na filteru , filter zavaren na celicnu cijev koja dolazi iz podnozja frizidera takva ista ulazi sa tlacne strane kompresora samo sto pri ulazu u frizider je prelaz sa bakra na celicnu cijev ,i jos ima kao sto i mora servisnu cijev i to je sve sto se tice cijevi koje se nalaze na i oko kompresora. kompresor je ZEM GLY 80 AA .
- milan
- Preminuo
- Postovi: 4426
- Pridružen: 19 Avg 2006, 22:38
- Location: Novi Sad
- Specialty: tv-multimedia
Re: Kučni frizider ZANUSSI kombinovani
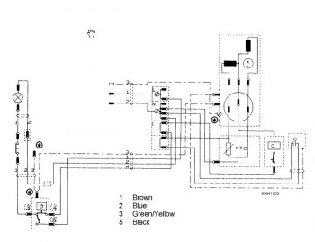
Ovo bi trebalo da bude SM za njega.
- Prilog
-
ZD22.pdf- zd22
- (341.48 KiB) Preuzeto 962 puta.
- nike
- gxu

- Postovi: 2898
- Pridružen: 21 Mar 2010, 11:35
- Location: Split HR
- Warranty service: Atosa Arisco Ozti Fimar Roller-Grill Systemair Fiocchetti Prismafood Cappone Hendi Omniwash Icetech ItalI-Ice
- Contact person: NIKE
- Specialty: whitegoods
- Lokacija: Split, HR
Re: Kučni frizider ZANUSSI kombinovani
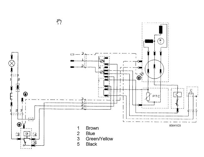
Iz crteža na strani 6 manuala koje je Milan postavio vidi se da je to klasična izvedba sa 2 isparivača u nizu bez ikakvih ventila i sl..
Ako isparivač frižidera slabo hladi znači da je veliko pregrijanje rashladnog sredstva. Ako je pothlađenje tekućine na ulazu u filtar sušač normalno ili veliko (zadnjih par serpentina na kondenzatoru mlako a filtar sušač koji stupanj iznad sobne temperature ili na sobnoj temperaturi) onda je u pitanju djelomično začepljenje kapilare.
Najvjerojatnije, na mjestu gdje kapilara ulazi u isparivač, se nakupilo voska koji je produkt razlaganja POE ulja a koji R134a ispire sa stjenki sistema i gomila na izlazu iz kapilare gdje je temperatura niska. Česta pojava, posebno ako je temperatura prostorije visoka, prljav kondenzator i neadekvatna cirkulacija zraka oko kondenzatora.
Jedino trajno rješenje je zamjena cijele kapilare odgovarajućom novom.
Iz crteža lociraš gdje je spoj kapilare i isparivača, isječeš lim i iskopaš poliuretan oko toga, staviš novu kapilaru izvana i staviš novi filtar, vakumiraš na 400 mikrona i napuniš plin na vagu ili menzuru točno koliko piše na naljepnici.
Provjeriš rad i ako je sve OK, PUR-pjenom popuniš rupu, zalijepiš neku naljepnicu preko i to je to.
Dali je kapilara provučena kroz usisnu cijev? Iz crteža mi tako izgleda.
O ekonomiji i estetici tog postupka ne bih raspravljao osim da dodam da bi ja taj frižider otpisao jer ti popravci nisu predviđeni njegovom konstrukcijom.
Ili, nabaviš ove alate:
http://fierychill.com/cap-check-chaser- ... ering-1101
http://fierychill.com/cap-check-capilla ... ering-1003
Ako isparivač frižidera slabo hladi znači da je veliko pregrijanje rashladnog sredstva. Ako je pothlađenje tekućine na ulazu u filtar sušač normalno ili veliko (zadnjih par serpentina na kondenzatoru mlako a filtar sušač koji stupanj iznad sobne temperature ili na sobnoj temperaturi) onda je u pitanju djelomično začepljenje kapilare.
Najvjerojatnije, na mjestu gdje kapilara ulazi u isparivač, se nakupilo voska koji je produkt razlaganja POE ulja a koji R134a ispire sa stjenki sistema i gomila na izlazu iz kapilare gdje je temperatura niska. Česta pojava, posebno ako je temperatura prostorije visoka, prljav kondenzator i neadekvatna cirkulacija zraka oko kondenzatora.
Jedino trajno rješenje je zamjena cijele kapilare odgovarajućom novom.
Iz crteža lociraš gdje je spoj kapilare i isparivača, isječeš lim i iskopaš poliuretan oko toga, staviš novu kapilaru izvana i staviš novi filtar, vakumiraš na 400 mikrona i napuniš plin na vagu ili menzuru točno koliko piše na naljepnici.
Provjeriš rad i ako je sve OK, PUR-pjenom popuniš rupu, zalijepiš neku naljepnicu preko i to je to.
Dali je kapilara provučena kroz usisnu cijev? Iz crteža mi tako izgleda.
O ekonomiji i estetici tog postupka ne bih raspravljao osim da dodam da bi ja taj frižider otpisao jer ti popravci nisu predviđeni njegovom konstrukcijom.
Ili, nabaviš ove alate:
http://fierychill.com/cap-check-chaser- ... ering-1101
http://fierychill.com/cap-check-capilla ... ering-1003
"Blago budalama, njima je lako jer ne misle tako!" PV
- milan
- Preminuo
- Postovi: 4426
- Pridružen: 19 Avg 2006, 22:38
- Location: Novi Sad
- Specialty: tv-multimedia
Re: Kučni frizider ZANUSSI kombinovani
Ostatak dokumentacije
- Prilog
-
P09203000325.pdf- (50.61 KiB) Preuzeto 280 puta.
-
P09203000326.pdf- (37.16 KiB) Preuzeto 245 puta.
-
P09203000327.pdf- (18.25 KiB) Preuzeto 260 puta.
-
P09203000328.pdf- (51.2 KiB) Preuzeto 309 puta.
-
nizak pritisak
- _

- Postovi: 27
- Pridružen: 22 Mar 2011, 19:09
- Location: Hrvatska - Dubrovnik
- Contact person: Ivo
- Phone number: 0038520417934
Re: Kučni frizider ZANUSSI ZD22/6R ZLRF280 kombinovani
Hvala na uputama i savietima ,za sada nista necu raditi sa tim friziderom jer na poslu sam totalno zapeo ,LJETO je pa se kvare ko ludi !
-
- Slične teme
- Odgovori
- Pregledano
- Zadnji post
-
-
INDESIT B33FNF kombinovani frižider
napisao Sale Mitrovic » 11 svi 2009, 11:48 » u FRIŽIDERI I ZAMRZIVAČI - 25 Odgovori
- 13473 Pregledano
-
Zadnji post napisao Talichni
25 Jan 2017, 17:33
-
-
-
Kombinovani frizider gorenje ODUSTAO
napisao deletraj » 25 Sep 2009, 10:43 » u FRIŽIDERI I ZAMRZIVAČI - 3 Odgovori
- 1685 Pregledano
-
Zadnji post napisao deletraj
26 Sep 2009, 06:33
-
-
-
kombinovani frizider BEKO S25CBPBW10 - termostat?(REŠENO)
napisao dhm69 » 30 Avg 2010, 12:52 » u FRIŽIDERI I ZAMRZIVAČI - 33 Odgovori
- 18869 Pregledano
-
Zadnji post napisao goranfri
05 Sep 2010, 22:16
-
-
- 10 Odgovori
- 2832 Pregledano
-
Zadnji post napisao goranfri
13 Nov 2010, 23:17
-
-
Samusng SRL39 kombinovani frizider iskljucuje u minusu
napisao mladjo372618 » 14 Apr 2011, 16:32 » u FRIŽIDERI I ZAMRZIVAČI - 2 Odgovori
- 1092 Pregledano
-
Zadnji post napisao GTI
14 Apr 2011, 21:35
-
-
-
LG 389SQF NO FROST kombinovani frizider RESENO
napisao zoks.80 » 09 Jul 2011, 14:03 » u FRIŽIDERI I ZAMRZIVAČI - 8 Odgovori
- 5822 Pregledano
-
Zadnji post napisao KRKI
11 Feb 2016, 00:10
-
-
-
RESENO Whirlpool frižider kombinovani ARC6680IX
napisao ivicastantic » 16 Feb 2013, 22:49 » u FRIŽIDERI I ZAMRZIVAČI - 18 Odgovori
- 3942 Pregledano
-
Zadnji post napisao Polaris
27 Feb 2013, 21:27
-
-
-
LG kombinovani frizider GR-392CSF - Rešeno
napisao Kiko-SK » 11 Jul 2013, 22:55 » u FRIŽIDERI I ZAMRZIVAČI - 21 Odgovori
- 4879 Pregledano
-
Zadnji post napisao Kiko-SK
06 Dec 2013, 22:32
-
